Alkmaar, 09 mei 2014. Nederland moet zich beschermen tegen het veranderende klimaat, onder andere door waterbekkens aan te leggen om de toenemende regenval op te vangen. Sinds enkele jaren ligt er een dringend verzoek van het Hoogheemraadschap Hollands Noorderkwartier (HHNK) om het gebrek aan opslag nabij het station Alkmaar Noord op te lossen. Deze 'waterschuld' is geleidelijk ontstaan door nieuwe gebouwen en verhardingen en is opgelopen tot 566 m2. Mede door de crisis is compensatie er niet echt van gekomen. Het geduld van het waterschap op en het dreigt nu met maatregelen als bestuursdwang of een dwangsom.
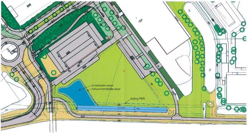
Binnenkort worden de werkzaamheden gestart voor het Zeswielentracé. De gemeente wil het oplossen van de waterschuld in dit project verwerken om kosten te besparen. Er is inmiddels inventarisatie van de te nemen maatregelen in het peilgebied gedaan, een schetsontwerp en een kostenopzet gemaakt. De kosten zijn geraamd op € 115.000. Daarvan moet een 'robuuste waterpartij met natuurvriendelijke oevers' aangelegd worden, aansluitend op bestaand water. De vorm volgt de contour van het windrecht van de tegenoverliggende molen. Het schetsontwerp is inmiddels besproken met HHNK en PWN (er ligt een hoofdwaterleiding die verdiept moet worden) en in principe door beide partijen akkoord bevonden.
