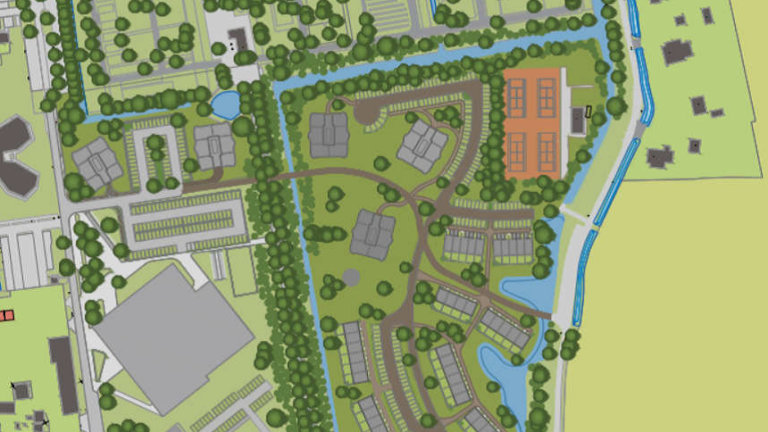
Het woningbouwplan op de velden van het voormalige BSV-sportpark en een deel van het terrein van De Beeck heet voortaan 'Parck De Beeck'. Er is plek voor 110 appartementen en 42 grondgebonden woningen. Woningcorporatie KennemerWonen neemt 76 appartementen/woningen in de sociale huur voor haar rekening. Nog eens 44 appartementen krijgen een betaalbare huur voor middengroepen. De resterende 32 woningen komen beschikbaar voor koop tot maximaal € 400.000.
Het ontwerp bestemmingsplan ligt sinds vrijdag ter visie. De gemeente Bergen is bij monde van wethouder Valkering tevreden over het resultaat: "Door in alle rust goed te luisteren naar de geluiden van omwonenden en belanghebbenden leggen we nu een plan ter visie dat echt voelt als een win-win. Een flink aantal betaalbare woningen erbij, en plan dat qua inrichting en duurzaamheid ook mooi aansluit bij de omgeving.”
In de noordwesthoek van het plan zijn vijf appartementengebouwen van drie bouwlagen ingetekend met elk 22 appartementen. De woningen met een tuin komen voornamelijk in de zuidoosthoek nabij de Kerkedijk en Oudburghweg. De nieuwe wijk wordt groen en waterrijk ingericht.
Het bestemmingsplan voor het BSV-terrein ligt vanaf 26 maart digitaal ter inzage via ruimtelijkeplannen.nl. Om een zienswijze in te dienen krijgt iedereen zes weken de tijd. Voor de zomer wordt het daarna voorgelegd aan de gemeenteraad.
