Fietsers krijgen geen voorrang bij de nieuwe oversteek op het kruispunt Laanweg-Sportlaan, in het centrum van Schoorl. Deze wens van de gemeenteraad is onderzocht maar als te onveilig betiteld. Het college van burgemeester en wethouders van Bergen blijft bij de oorspronkelijke plannen zoals deze in 2019 aan de inwoners werden gepresenteerd. Donderdagavond wordt in de Algemene Raadscommissie duidelijk of de raadsfracties zich daarbij neerleggen.
Op het kruispunt slaat veel verkeer vanaf de Sportlaan linksaf richting N9. Het zicht op overstekende fietsers met voorrang zou op dit punt voor deze automobilisten onvoldoende zijn. Wethouder Erik Bekkering: “We willen de veiligste variant voor zowel fietsers als automobilisten. Uitgebreid onderzoek heeft dat ook aangetoond. En naast veiliger maakt de aanpassing van dit kruispunt ook het hele centrumgebied van Schoorl prettiger voor fietsers en wandelaars.”
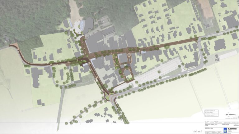
Om doorgaand autoverkeer vanaf de N9 zo min mogelijk door het centrum van Schoorl te laten rijden verandert de kruising Laanweg-Sportlaan. Nu rijdt het doorgaande verkeer van de Laanweg het centrum van Schoorl in. Straks wordt het autoverkeer geleid naar het parkeerterrein langs de Sportlaan (Paardenmarkt) en het toekomstig aan te leggen parkeerterrein achter de voormalige Rabobanklocatie. De Laanweg wordt na de kruising richting het centrum een 30-kilometerzone. Ook het deel van de Duinweg tot de Klimweg wordt 30-kilometerzone.
In het centrum komen meer fietsenrekken. Het nieuw ingerichte kruispunt Laanweg-Sportlaan en het centrum krijgen betere straatverlichting. Deze aanpassingen zijn onderdeel van het nieuwe centrumplan Schoorl. Inwoners en ondernemers dachten mee over groen, sfeer, historisch karakter en het gebruik door de diverse verkeersdeelnemers en ondernemers.
Of de schop nog dit jaar in de grond kan, hangt af van verschillende onderzoeken, vergunningen of andere procedures.
Het voorstel komt donderdag aan de orde in de Algemene Raadscommissie en op 28 januari in de gemeenteraad.
