Minister Ollongren van Binnenlandse Zaken heeft de eerste projecten bekendgemaakt, die een kapitaalinjectie krijgen vanuit de Woningbouwimpuls. EΓ©n van die projecten is Overstad, met ruim 1.000 woningen. Gemeente Alkmaar krijgt er 6 miljoen euro voor. Een blije wethouder Paul Verbruggen: "Dit is fantastisch nieuws!"
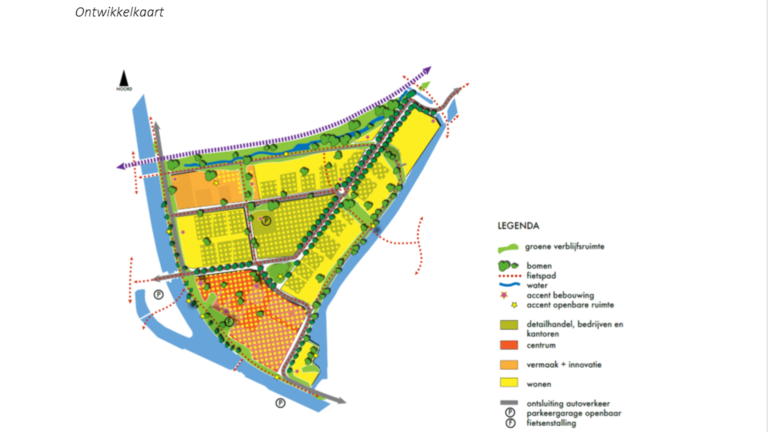
Gemeente Alkmaar moet het geld inzetten voor woningbouw, het (versneld) realiseren van een aantrekkelijk en groen verblijfsgebied, het faciliteren van de bouw van bijna 350 woningen op gemeentegrond en het bevorderen van wandelen en fietsen, onder andere met twee nieuwe bruggen voor langzaam verkeer. De ongeveer 650 andere woningen komen op particuliere grond.
"Het college is er alles aan gelegen om de bouw van woningen te versnellen. Met deze woningbouwimpuls gelden wordt dit mogelijk gemaakt in Overstad", aldus Verbruggen.
De Woningbouwimpuls is een subsidiepot van 1 miljard euro. In de eerste ronde is 290 miljoen euro toegewezen aan 27 projecten met bij elkaar 51.000 woningen.
