De Alkmaarderhout raakt nog eens 3500 m2 groen kwijt aan parkeerterreinen. Dat blijkt uit geheime B&W-stukken, die vandaag na een nieuw beroep op de Wet Openbaarheid van Bestuur werden bezorgd bij Red De Hout. Het actiecomitรฉ heeft de stukken verspreid in de klankbordgroep, die vanavond weer bijeenkomt.
De gemeente beloofde Noordwest Ziekenhuisgroep 420 parkeerplekken, waarvan 262 in het openbaar groen. Met gemiddeld 11 m2 per plek is sprake van 2900 m2, plus naar schatting circa 600 m2 voor nieuwe in- en uitrijdruimte. Volgens het Alkmaars college is het een tijdelijke oplossing tot 2035, maar het ziekenhuis heeft gevraagd een deel permanent te maken. dDt wordt in overweging genomen.
In december 2015 was een drielaagse parkeergarage voor het rijksmonument Westerlicht nog een optie, maar dit geen haalbare kaart, temeer omdat de vijver bij het rijksmonument hoort en de 1.100 m2 aan wateroppervlak van het waterschap in de omgeving moest worden gecompenseerd. De gemeente koos daarom in april 2016 voor 64 nieuwe parkeerplaatsen in plaats van groen. De vijver is overigens nog niet helemaal veilig, omdat de route voor ambulances nog niet vastligt en mogelijk hier naartoe verlegd wordt.
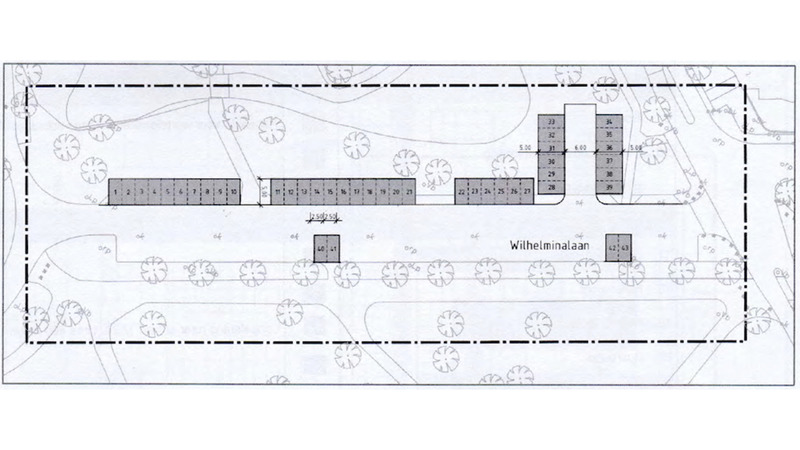
Aan het begin van de Harddraverslaan/ Wilheminalaan, en aan beide zijden van de Harddraverslaan komen 106 nieuwe parkeerplaatsen, waaronder op het veldje tussen de bunker en Huize Voorhout. Het besluit uit 2007 om 50 plekken weg te halen wordt zo meer dan teruggedraaid.
Tussen de Julianalaan en de Bloemenklok komen de meeste extra parkeerplaatsen aan de westkant. Er komen ook parkeerplaatsen aan de zuidkant van de Julianalaan. Alleen met versmalling van de weg tot eenrichtingsverkeer voor auto's zouden de bomen langs de Julianalaan kunnen blijven staan, maar dit levert uitdagingen op wat betreft busvervoer.
Vrijwel de gehele parkeerbehoefte van NWZ kan met de Singelgarage (400 plekken) worden opgevangen, maar de gemeente wil hooguit 80 vergunningen voor het ziekenhuis verstrekken, ten faveure van winkelend publiek. Volgens erfgoedstichting Adapt is hierbij niet alternatief gebruik van de Schelphoekgarage overwogen.
Kijk voor meer informatie op adaptalkmaar.nl.
